MQ
Epoca del fabbricato
Locali
Prezzo
MQ
Epoca del fabbricato
Locali
Prezzo
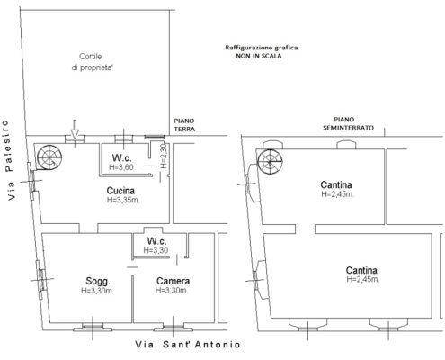
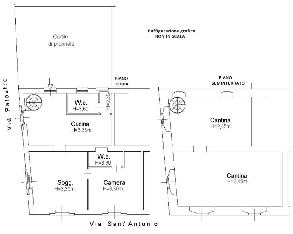
VIA SANT’ANTONIO DA PADOVA ANGOLO VIA PALESTRO -CINISELLO BALSAMO In posizione comoda e ben servita, a breve distanza dalla MM1 Sesto 1° Maggio FS, proponiamo in vendita soluzione indipendente di circa 130 mq commerciali circa disposta su due livelli, con giardino privato, ingresso autonomo e spese condominiali contenute. L’immobile, completamente ristrutturato a nuovo, si apre su un appartamento di circa 85 mq al piano terra composto da ampia cucina abitabile, luminoso soggiorno, camera matrimoniale, bagno finestrato e secondo bagno.
Una scala interna collega al piano seminterrato, di pari metratura, attualmente suddiviso in due locali utilizzati come camere e un ulteriore spazio multiuso ideale come studio, area hobby o zona relax.
La proprietà include un giardino privato fronte casa, perfetto per vivere l’esterno in piena autonomia.
Soluzione ideale per chi cerca ampi spazi, indipendenza e comfort in una zona tranquilla ma strategica, a due passi da servizi, scuole e collegamenti metropolitani ed autostradali – tangenziali.
Prezzo richiesto euro 339.000,00
Soggiorno: Si
Cucina: Si
Numero bagni: 2
IPE: 153,97 kwh/mqa

PIAZZALE LODI